2-Zimmerwohnung im Projekt „Hugos“

An der alten Gärtnerei 34a in 12109 Berlin-Mariendorf

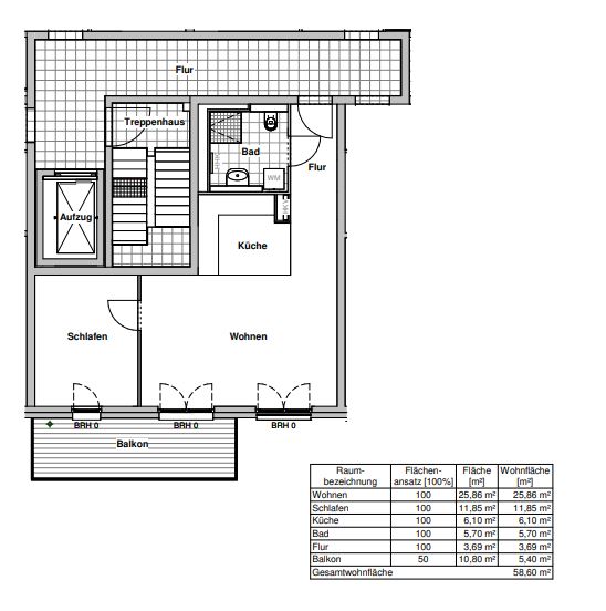
1. Obergeschoss

Baujahr: 2026

Bezugsfähig: sofort

Wohnfläche: ca. 58,6 m²

Anzahl Zimmer: 2

Miete: 1.250.00 €

Heiz- und Betriebskosten: 216,00 €

Gesamtmiete: 1.466,00 €

Mindestmietzeit: 1 Jahr

Heizungsart: Fernwärme

Energieeffizienzklasse: B

Ausstattung: Vinyl-Fußboden, Q3-Verpsachtelung, elektrische Rollläden, EBK

GRUNDRISS:

Lage:

Mariendorf ist ein lebendiger und vielseitiger Stadtteil mit historischem Charakter im Süden Berlins. Der Ortsteil ist optimal an die öffentlichen Verkehrsmittel angebunden und auch per PKW gut erreichbar.

Schulen, Kitas als auch Einkaufsmöglichkeiten sind in Mariendorf reichlich vorhanden. Der Ortsteil bietet Familien, Paaren und Singles ein neues Zuhause.

Die Immobilie ist nur wenige Minuten vom S-Bahnhof Mariendorf entfernt.