moderne Erdgeschosswohnung
mit EBK in Berlin-Rudow

Erdgeschoss

12357 Berlin-Rudow

Baujahr: 2016

Bezugsfähig: sofort

Wohnfläche: ca. 101 m²

Anzahl Zimmer: 3

Kaufpreis: 490.000 €

Hausgeld: 505 € p.m.

Heizungsart: Fernwärme

Energieeffizienzklasse: A

Ausstattung: 
– Q3- Verpachtelung
– Parkett
– Tageslichtbad
– Gartenanteil
– Einbauküche
– elektrische Rollläden
– Abstellkammer und HWR

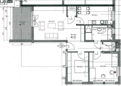
GRUNDRISS:

Lage:
Das Objekt liegt in belebter Gegend in Berlin Rudow (Neukölln). Die Buslinien 172 und M11 verkehren in der Nähe. Zu Fuß erreichen Sie einige Restaurants, Supermärkte, zwei Bäckereien, ein Café und einen Arzt. Ein paar Grün- und Parkanlagen, zwei Fitnessstudios, zwei Tierhandlungen, eine Bar und einen Club finden Sie ebenfalls vor Ort.

 

Objektbeschreibung:
Diese freundliche, vollständig renovierte Wohnung zeichnet sich durch eine gehobene Innenausstattung aus und steht ab sofort zum Kauf. Zu dem Apartment zählen drei schöne Zimmer. Die Wohnung ist barrierefrei zugänglich und durch einen Fahrstuhl gelangen Sie bequem ins entsprechende Stockwerk. Bei der Heizungsart der Eigentumswohnung, die sich in einem 2016 erbauten Haus befindet, handelt es sich um eine Fernwärme. Eine Einbauküche sowie ein Kellerraum stehen Ihnen außerdem zur Verfügung.

 

Provision: 3,57 % inkl. gesetzl. MwSt. für den Käufer