2-Zimmerwohnung in Bernau

Schönfelder weg 1j in
16321 Bernau

ERDgeschoss

Baujahr: 2023

Einzugsdatum: 15.03.2024 (Erstbezug)

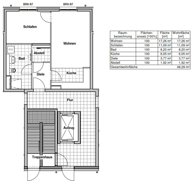
Wohnfläche: ca. 48 m²

Anzahl Zimmer: 2

Miete: 627,77 €

Betriebskosten: 123,54 €

Gesamtmiete: 751,31 €

Mindestmietzeit: 1 Jahr

Heizungsart: Fernwärme

Energieeffizienzklasse: B

Ausstattung: Vinylböden, Rollläden, Keller, Fußbodenheizung, Glasfaseranschluss, Fahrstuhl

Lage:

Bernau bei Berlin ist eine Stadt im Landkreis Barnim in Brandenburg. Die Stadt liegt etwas 10 Km nordöstlich von Berlin. Sie zeichnet sich durch eine grüne Umgebung, historische Gebäude und eine gute Anbindung an die Hauptstadt aus.

 

Für Naturliebhaber bietet Bernau eine Fülle von Möglichkeiten. Genießen Sie entspannte Spaziergänge im angrenzenden Panke Park, welcher 2022 samt Teufelspfuhl aufwändig renaturiert wurde. Erkunden Sie die umliegenden Wälder oder lassen Sie die Seele am Uferweg der Panke baumeln.

 

Bernau bietet zudem eine sehr gute Infrastruktur, bestehend aus dem Regionalexpress nach Berlin, der S-Bahnlinie 2 sowie die Autobahnanbindung A10. Die Stadt verfügt über mehrere Schulen, Kindergärten sowie eine Bibliothek.  Lebensmittelmärkte sowie weitere Läden des täglichen Bedarfs sind binnen weniger Gehminuten in den Bahnhofs Passagen erreichbar.

 

Lernen Sie die Idylle und perfekte Infrastruktur von Bernau und der Panke Aue kennen und werden Sie Mieter.