3-Zimmerwohnung in Schöneiche b. Berlin

Ottokar-Domma-Weg
in 15566 Schöneiche b. Berlin

1. Obergeschoss

Baujahr: 2024 (Erstbezug)

Bezugsfähig: sofort

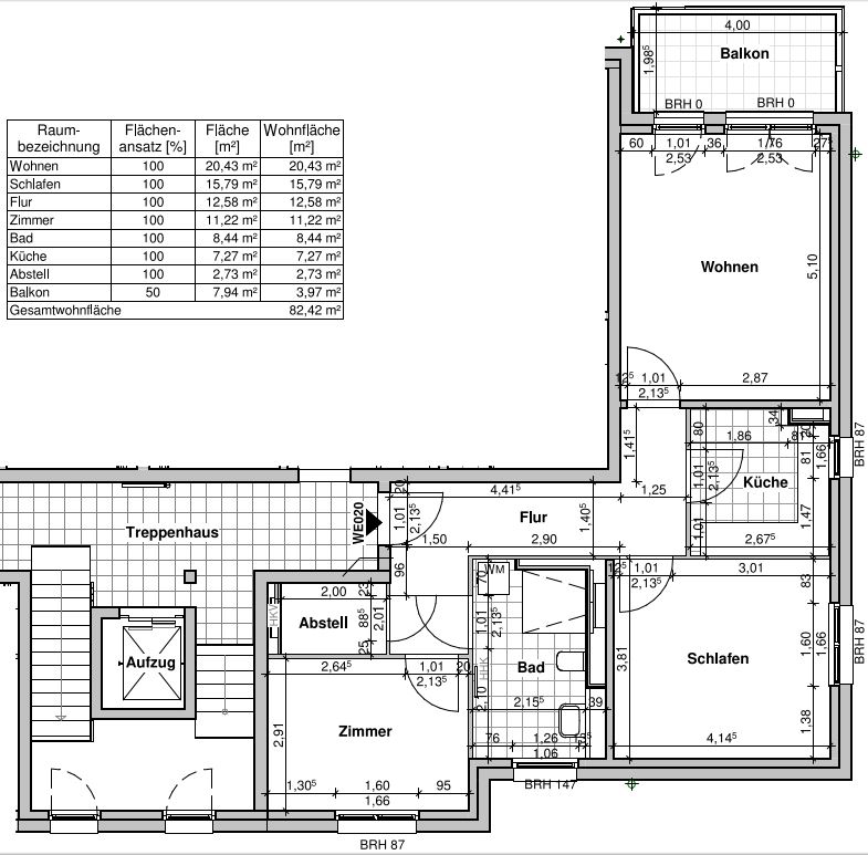
Wohnfläche: ca. 82 m²

Anzahl Zimmer: 3

Miete: 1.250,00 €

Miete TG-Stellplatz: 80,00 €

Betriebskosten: 316,30 €

Gesamtmiete: 1.646,30 €

Mindestmietzeit: 1 Jahr

Heizungsart: Blockheizkraftwerk

Energieeffizienzklasse: B

Ausstattung: Laminat und Fliesen mit Fußbodenheizung, elektrische Rollläden

Besonderheiten: geschlossene Küche, Tageslichtbad, barrierefreie Wohnung (Dusche 1,2m x 1,2x), Abstellkammer, Südseite, Tiefgaragenstellplatz

Sie sehen gerade einen Platzhalterinhalt von Standard. Um auf den eigentlichen Inhalt zuzugreifen, klicken Sie auf den Button unten. Bitte beachten Sie, dass dabei Daten an Drittanbieter weitergegeben werden.

Weitere Informationen

Lage:
Schöneiche bei Berlin ist eine grüne, familienfreundliche Gemeinde am östlichen Stadtrand der Hauptstadt. Die ruhige und naturnahe Umgebung, mit zahlreichen Parks und Wäldern, bietet viel Raum für Erholung und Freizeitaktivitäten. Gleichzeitig ist Berlin durch die hervorragende Anbindung an den öffentlichen Nahverkehr, wie die nahegelegene Straßenbahn und Buslinien, schnell und bequem erreichbar. In Schöneiche selbst finden Sie alle wichtigen Einkaufsmöglichkeiten, Schulen, Kindergärten sowie Ärzte direkt vor Ort. Die Nähe zu den Seen in der Umgebung lädt zu entspannten Wochenenden in der Natur ein. 

Objektbeschreibung:
In einem modernen Neubau-Mehrfamilienhaus mit 12 Parteien bieten wir Ihnen eine attraktive 3-Zimmerwohnung im Erstbezug zur Vermietung an. Die Wohnung befindet sich im 1. Obergeschoss und erstreckt sich über ca. 82m², die durch eine durchdachte Raumaufteilung überzeugen. Helle, großzügige Räume und eine geschlossene Küche machen diese Wohnung ideal für Paare oder kleine Familien.