4-Zimmerwohnung im 2. Obergeschoss in Schönefeld

Theodor-Fontane-Allee 2h
in 12529 Schönefeld

2. Obergeschoss

Baujahr: 2025 (Erstbezug)

Bezugsfähig: 01.02.2025

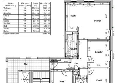
Wohnfläche: ca. 101 m²

Anzahl Zimmer: 4

Miete: 1.862,03 €

Miete AußenStellplatz: 100,00 €

Heiz- und Betriebskosten: 402,60 €

Gesamtmiete: 2.364,63 €

Mindestmietzeit: 1 Jahr

Heizungsart: Fernwärme

Energieeffizienzklasse: B

Ausstattung: Vinyl und Fliesen mit Fußbodenheizung, Rollläden

Besonderheiten: Tageslichtbad mit Badewanne, zweites Bad mit Dusche, Abstellkammer, Außenstellplatz

GRUNDRISS:

Sie sehen gerade einen Platzhalterinhalt von Standard. Um auf den eigentlichen Inhalt zuzugreifen, klicken Sie auf den Button unten. Bitte beachten Sie, dass dabei Daten an Drittanbieter weitergegeben werden.

Weitere Informationen

Lage:

Die Wohnung befindet sich in der beliebten Theodor-Fontane-Allee in Schönefeld, einer aufstrebenden Gemeinde im südlichen Berliner Umland. Die Lage zeichnet sich durch eine hervorragende Anbindung an die Hauptstadt und die umliegenden Regionen aus. Der Flughafen Berlin-Brandenburg (BER) ist in wenigen Minuten erreichbar, ebenso wie die A113 und die S-Bahn-Station Schönefeld, die schnelle Verbindungen ins Berliner Zentrum bietet.

In der näheren Umgebung finden sich Einkaufsmöglichkeiten, Kindergärten, Schulen und medizinische Versorgung. Die grünen Naherholungsgebiete laden zu Spaziergängen, sportlichen Aktivitäten und Entspannung ein. Die Mischung aus städtischer Infrastruktur und ruhigem Wohnumfeld macht die Lage besonders attraktiv für Familien, Berufspendler und Ruhesuchende gleichermaßen.

 

Objektbeschreibung:
In einem modernen Neubau-Mehrfamilienhaus mit 14 Parteien bieten wir Ihnen eine attraktive 4-Zimmerwohnung im Erstbezug zur Vermietung an. Die Wohnung befindet sich im 2. Obergeschoss und erstreckt sich über ca. 101m², die durch eine durchdachte Raumaufteilung überzeugen. Helle, großzügige Räume, eine offene Küche und der private Mietergarten machen diese Wohnung ideal für Familien.